Petra Käuper Immobilien

Moderne ETW über 2 Ebenen in Zentrumsnähe

Objektart

Eigentumswohnung

Wohnfläche

87 m²

Grundstück

1002 m²

Zimmer

3

Kaufpreis

248.000,00 €

Außen-Courtage

3,57 %

Die Immobilie befindet sich zentrumsnah in Harsewinkel in einer ruhigen Wohngegend. Die Einkaufsmöglichkeiten, Schulen und
öffentlichen Verkehrsmittel sind fußläufig zu erreichen.

Harsewinkel ist eine charmante Stadt in Nordrhein-Westfalen, die für ihre landwirtschaftliche Tradition bekannt ist. Die Stadt bietet eine gute Anbindung an die umliegenden Städte und verfügt über vielfältige Freizeit- und Erholungsmöglichkeiten. Mit einer Mischung aus ländlichem Flair und urbanen Annehmlichkeiten ist Harsewinkel ein attraktiver Wohnort für Familien und Pendler.
Die Region um Harsewinkel ist geprägt von idyllischen Landschaften, grünen Wiesen und Wäldern. Die Nähe zur Natur lädt zu Spaziergängen, Radtouren und anderen Outdoor-Aktivitäten ein.

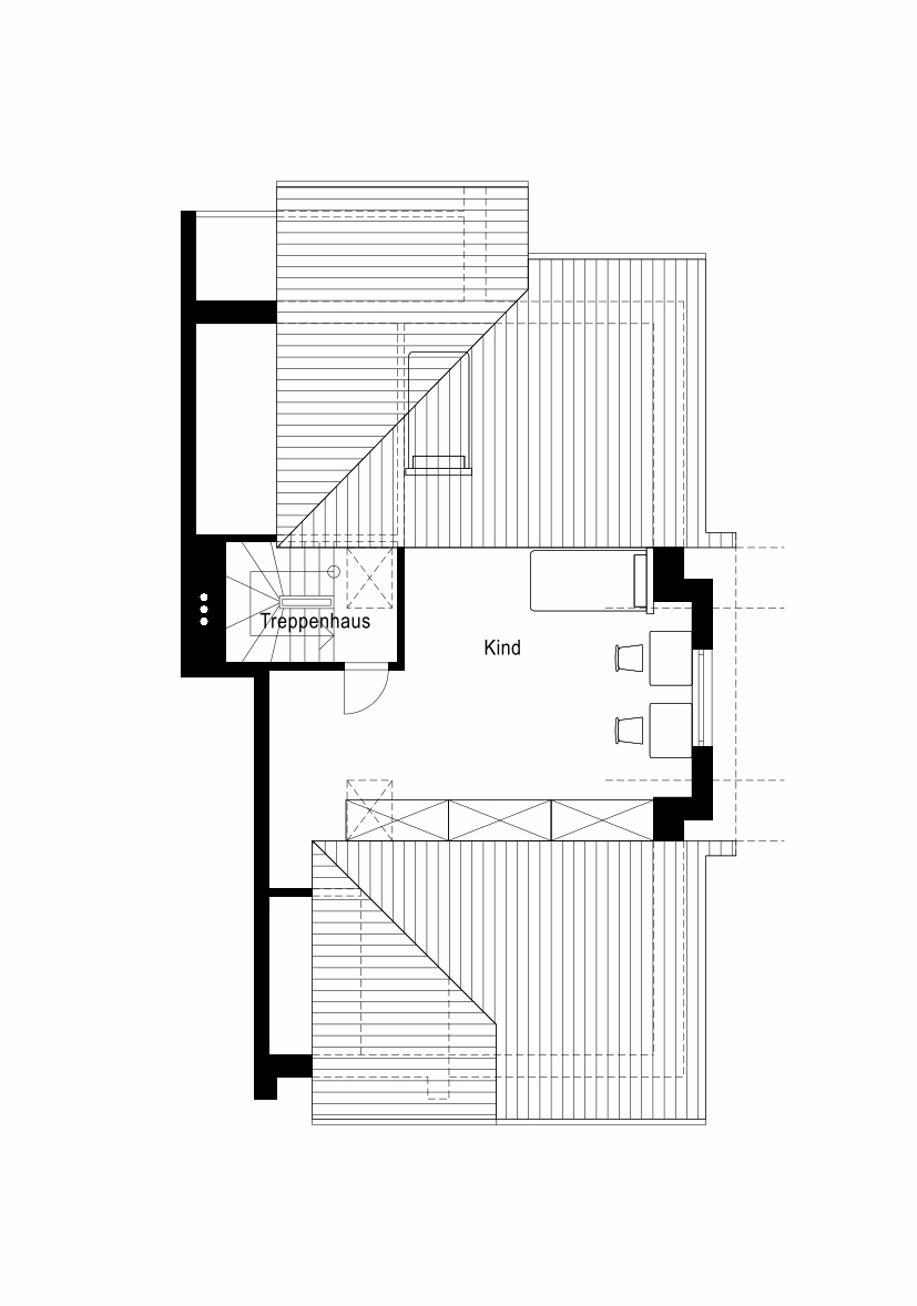
Diese geräumige Dachgeschosswohnung in einem 2 1/2 geschossigen Gebäude aus dem Jahr 1997 besticht nicht nur durch ihre praktische Lage, sondern auch durch ihren sehr gepflegten Zustand. Die Immobilie verfügt über eine Wohnfläche von rd. 87 m² und befindet sich im Dachgeschoss und Spitzboden des 6-Familienhauses. Die Fußbodenheizung sorgt für angenehme Wärme. Ein Keller sowie ein Parkplatz sind ebenfalls vorhanden. Eine Südloggia lädt zum Entspannen ein.

Die Wohnung bietet insgesamt 3 Zimmer, darunter 2 Schlafzimmer und 1 Badezimmer. Der offene Grundriss schafft einen großzügigen und modernen Wohnbereich. Jedes Zimmer ist hell und freundlich gestaltet und bietet ausreichend Platz für individuelle Einrichtungsmöglichkeiten. Neben der Ausstattung und der gut durchdachten Raumaufteilung bietet diese Dachgeschosswohnung ein attraktives Gesamtpaket.

Das Badezimmer ist mit einer ebenerdigen Dusche und ausreichend Tageslicht ausgestattet. Die Böden im Dachgeschoss sind mit Fliesen in Holzoptik auf einer Fußbodenheizung ausgelegt. Das Schlafzimmer im Spitzboden verfügt über einen Laminatboden. Die Qualität der Ausstattung ist als gehoben einzustufen, was einen komfortablen und ansprechenden Wohnstandard garantiert – die Smart Home Einbindung ist bereits vorbereitet. Die Wände sind glatt verputzt und gestrichen. Bei der letzten Modernisierung im Jahr 2021 wurden außerdem die Rollläden elektrisch nachgerüstet.

Energieausweißtyp: Verbrauch
Heizungsart: Gas-Heizung
Wesentliche Energieträger: Gas
Baujahr: 1997
Gültig bis: 22.12.2035
Ausstelldatum: 22.12.2025
Energiebedarfskennwert: 72,1 kWh/(m²*a)
Energieeffizienzklasse: B

Exposé anfordern

Ihre Ansprechpartnerin für das Objekt

Petra Käuper